Rzut parteru










Powierzchnia użytkowa pomieszczeń na parterze


1/1 - Wiatrołap - 3,49 m2
1/2 - Salon, Jadalnia, Kuchnia - 26,40 m2
1/3 - Spiżarnia - 2,99 m2
1/4 - Łazienka - 2,51 m2
1/5 - Garaż - 15,94 m2
1/6 - Kotłownia - 6,58 m2 (9,80 m2)

                   Łącznie: 57,94 m2 (59,79 m2)

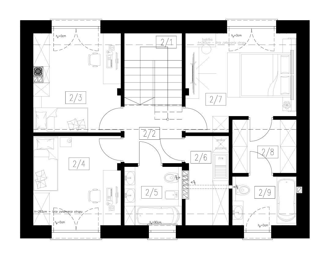
Rzut piętra




Powierzchnia użytkowa
pomieszczeń na piętrze

2/1 - Klatka schodowa - 5,67 m2
2/2 - Korytarz - 4,41 m2
2/3 - Pokój - 11,28 m2
2/4 - Pokój - 10,36 m2
2/5 - Łazienka - 4,45 m2
2/6 - Pralnia/Garderoba - 4,94 m2 
2/7 - Sypialnia - 13,14 m2
2/8 - Garderoba - 4,52 m2
2/9 - Łazienka - 4,12 m2

                                           Łącznie: 62,89 m2